Architecture – Modélisation 3D et BIM

Ces réalisations illustrent notre travail de modélisation 3D architecturale à partir de plans 2D, pour des projets de construction ou de réhabilitation.


Lorsque le projet s’inscrit dans une démarche BIM, les modèles sont produits sous Revit et organisés pour s’intégrer dans les méthodes de travail existantes et accompagner les phases de coordination et de validation.


Hors BIM, la modélisation constitue un socle fiable pour la production de rendus, d’animations, de supports immersifs ou de modèles destinés à l’impression 3D.

  • Modélisation 3D BIM – vue axonométrique immeuble de bureaux
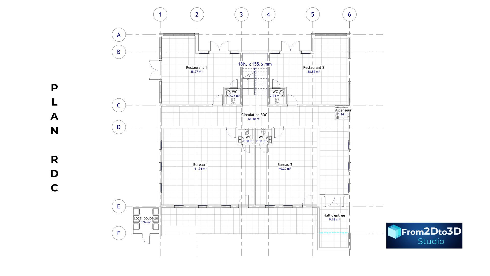
  • Plan RDC
  • Coupe escalier

Des questions ou besoin de nos services ?

Contactez-nous pour un devis ou toute information complémentaire.

Nous sommes à votre écoute à :

contact@from2dto3dstudio.com